Piriápolis: revelan el proyecto Aerosillas que ganó la licitación anulada por la Intendencia de Maldonado. Tras conocerse el informe negativo sobre la seguridad del complejo, Semanario La Prensa accedió al proyecto “Aerosillas”, con el cual el empresario Manuel Reyna ganó la licitación pública para la concesión del tradicional servicio en el cerro San Antonio de Piriápolis.
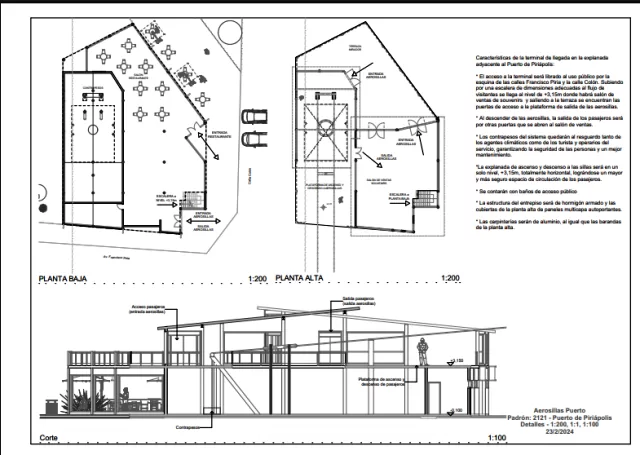
El proyecto, elaborado bajo el padrón 2121 del Puerto de Piriápolis, contemplaba un rediseño integral de la terminal de acceso, ubicada en la esquina de avenida Francisco Piria y calle Colón. Los planos y detalles técnicos —fechados entre enero y febrero de 2024— muestran una estructura moderna con una plataforma de ascenso y descenso al nivel +3,15 metros, una terraza mirador, salón de ventas y souvenirs, y un restaurante con vista al puerto.
“La terminal sería de uso público, con baños accesibles y un diseño que prioriza la seguridad y fluidez de circulación de los pasajeros”, señala la memoria técnica del proeycto. La estructura combina hormigón armado y cerramientos de vidrio,, con carpinterías y barandas de aluminio, integrándose al entorno urbano del puerto con fachadas sobre avenida Piria y calle Colón. Diseño funcional y seguro para el acceso de pasajeros.
La terminal de llegada de la aerosilla ubicada en la cima del cerro, presenta un diseño arquitectónico que prioriza la funcionalidad, la seguridad y la integración urbana. Según los planos técnicos del proyecto, la estructura se organiza en dos niveles claramente definidos, con accesos diferenciados para pasajeros y compartimientos técnicos.
La plataforma de acceso a la aerosilla se encuentra a nivel de calle, pero está sostenida por una estructura de hormigón armado que se eleva por encima del terreno, permitiendo una vista despejada y una circulación eficiente. Desde esta plataforma, los usuarios acceden a la sala de espera, ubicada en el nivel superior, donde también se realiza el embarque y desembarque de los pasajeros.
En el nivel inferior se encuentran los compartimientos del sistema motriz, así como los mecanismos de accionamiento y desaceleración de la aerosilla. Esta disposición permite separar las funciones técnicas de las áreas de circulación pública, mejorando la seguridad operativa. El sistema de acceso y descenso se realiza exclusivamente en el nivel superior, lo que garantiza mayor comodidad y protección para los usuarios. La estructura está construida en hormigón armado, con cerramientos de vidrio que aportan luminosidad y visibilidad al conjunto.
El diseño incluye detalles constructivos que se integran con los bordes de la pista alta, reforzando la estética del entorno y la experiencia visual del recorrido.
La terminal forma parte del patrimonio turístico de Piriápolis y su recuperación o puesta en valor representa una oportunidad para fortalecer la identidad local y la oferta recreativa del balneario.
La licitación había sido adjudicada inicialmente al empresario Manuel Reyna, pero el proceso fue revertido tras el dictamen del Tribunal de Cuentas, que objetó la adjudicación debido a la impugnación de Logizur Group. El entonces intendente, Enrique Antía, aceptó una de las observaciones del Tribunal de Cuentas, dejando la Intendencia de Maldonado sin efecto la adjudicación, quedando el futuro del emblemático paseo turístico nuevamente en suspenso.
Abella confirmó el informe negativo y llamó a “repensar el proyecto”
El intendente de Maldonado, Miguel Abella, confirmó que el proyecto de recuperación de las aerosillas de Piriápolis se encuentra en una situación comprometida, luego de informes técnicos negativos que advierten sobre riesgos estructurales y de seguridad.
Durante una entrevista con Semanario La Prensa, en el marco de la Fiesta Nacional del Chorizo en Pan de Azúcar, Abella explicó que tanto ingenieros de la Intendencia como técnicos del Puerto de Piriápolis (MTOP) —con jurisdicción sobre la plataforma de salida— emitieron informes que desaconsejan la reactivación del servicio en su estado actual.
“Hay una falta de seguridad importante en la zona de bajada, donde está el restaurante portuario. No podemos avanzar sin garantías”, señaló el jefe comunal. Abella fue enfático en que no está dispuesto a impulsar una inversión pública ni habilitar una iniciativa privada que implique riesgos para la población. “Hay que conversar con las autoridades del puerto y, sobre todo, con las de Piriápolis. Saber qué se quiere y qué se pretende. Nosotros vamos a apoyar, pero cuidando a la gente”, afirmó.
Consultado sobre posibles alternativas, como la instalación de un teleférico, Abella recordó que existió un proyecto vinculado al cerro Pan de Azúcar que no prosperó debido a su alto costo. “Las aerosillas son una postal de Piriápolis, pero también tienen sus riesgos. Hay dos sillas colgadas que representan un peligro real. No podemos ignorarlo”, advirtió.
El intendente insistió en la necesidad de abrir un espacio de diálogo entre todas las partes involucradas para encontrar una solución viable y segura. “Tenemos que conversarlo entre todos y ver qué camino tomar. No se trata solo de nostalgia, sino de responsabilidad”, concluyó.
Una licitación con final abierto
El complejo Aerosillas, cerrado desde 2023, fue adjudicado al empresario Manuel Reyna, quien nunca llegó a tomar posesión del bien. En diciembre de 2024, el entonces intendente Enrique Antía resolvió dejar sin efecto la licitación, tras aceptar las observaciones del Tribunal de Cuentas, que detectó al menos nueve irregularidades en el proceso, luego de la impugnación presentada por Logizur Group S.A.S.
La situación de las aerosillas —emblema turístico de Piriápolis y único paseo de su tipo en el país— continúa siendo objeto de análisis técnico y debate político, mientras la comunidad aguarda definiciones sobre su futuro.
Desde Semanario La Prensa alentamos la pronta reactivación de este histórico complejo, símbolo de la ciudad desde la década de 1960, e ícono turístico insustituible para residentes y visitantes.



















